So viel Platz, dass sogar Ihre Ideen ein eigenes Zimmer kriegen!

Wohnung
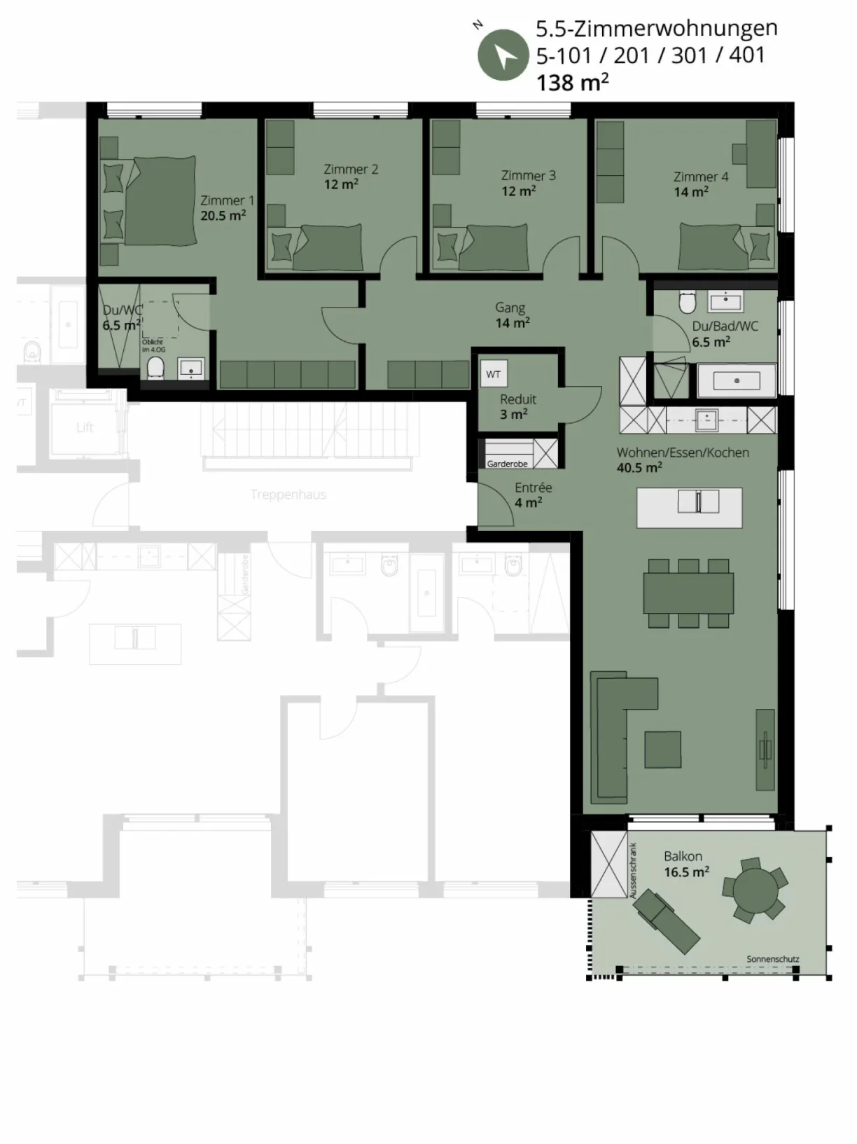
Zimmer: 5.5

Adresse:
Sonnrain 3
6232 Geuensee

Miete:
2'750.00 CHF
Kaution:
8850 CHF

Moderne 5.5-Zimmer-Wohnung in Geuensee - Erstbezug ab November 2025

Diese brandneue 5.5-Zimmer-Wohnung im Herzen von Geuensee bietet modernes Wohnen in ruhiger, naturnaher Lage mit bester Anbindung.

 

Highlights:

  • Wohnfläche: 138 m² + 15 m² Balkon
  • Boden & Heizung: Hochwertiges Parkett, komfortable Bodenheizung
  • Küche: Offene Designküche mit hochwertigen Geräten inkl. Kombi-Steamer/Backofen
  • Badezimmer & WC: Grosszügiges Bad mit Badewanne, separates Gäste-WC mit Dusche
  • Waschmöglichkeiten: Eigene Waschmaschine und Trockner in der Wohnung
  • Sonnenschutz & Energie: Elektrische Verbundraffstoren, Solarstrom auf jedem Gebäude
  • Abstellmöglichkeiten & Gemeinschaft: Kellerabteil mit Stromanschluss, Lift, Fahrrad- und Trockenraum
  • Parkplatz: Tiefgaragenplatz Nr. 39 mit Ladestation für CHF 130.-/Monat steht zur Verfügung
  • Verkehr & Infrastruktur: Vier Busverbindungen pro Stunde nach Sursee, Lebensmittelgeschäft (Landi) direkt in der Überbauung

 

Diese Wohnung verbindet modernes Wohnen mit einer naturnahen Umgebung - ideal für Singles, Paare oder kleine Familien, die Wert auf Qualität, Komfort und nachhaltige Technologien legen.

Weitere Informationen finden Sie auf www.midoma.ch oder unter Telefon 041 928 15 14.
Alle Angaben ohne Gewähr. Änderungen und Irrtümer vorbehalten.

JETZT ONLINE BESICHTIGEN!
  • Neubau
  • Garage
  • Parkplatz
  • Balkon
  • Aussicht auf Berge
  • Rollstuhlgängig
  • Haustiere erlaubt
  • Kabel-TV
  • Kinderfreundlich
  • Ruhig
  • Sonnig
  • Waschetrockner
  • Waschmaschine
  • Lift

Objektdaten

Zimmer
5.5
Badezimmer
2
Nettowohnfläche
138 m²
Geschoss
1
Baujahr
2025
Etage
1

Diese Website ist durch reCAPTCHA geschützt und es gelten die Datenschutzerklärung & Nutzungsbedingungen von Google.

Josip Matosevic

Josip Matosevic

Immobilienvermarkter